projektsolaris
solarishaupt0 plan-1
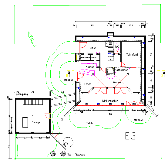
EG
u-plan-eg-1